V samotném srdci pražských Petřin jsme připravili projekt, který spojuje architektonickou výjimečnost, promyšlený design a investiční potenciál. Prostory v projektu Hvězda, navrženém slavným architektem Vladem Milunićem – autorem ikonického Tančícího domu, čeká nová kapitola.
Dnes ještě kancelářské prostory, brzy však osm moderních a elegantních bytů, které nabídnou svým majitelům i nájemníkům komfortní a praktické bydlení v prestižní rezidenční lokalitě. ✅ Projekt včetně všech posudků je v procesu zpracování; dokumentace bude připravena k podání na stavební úřad.
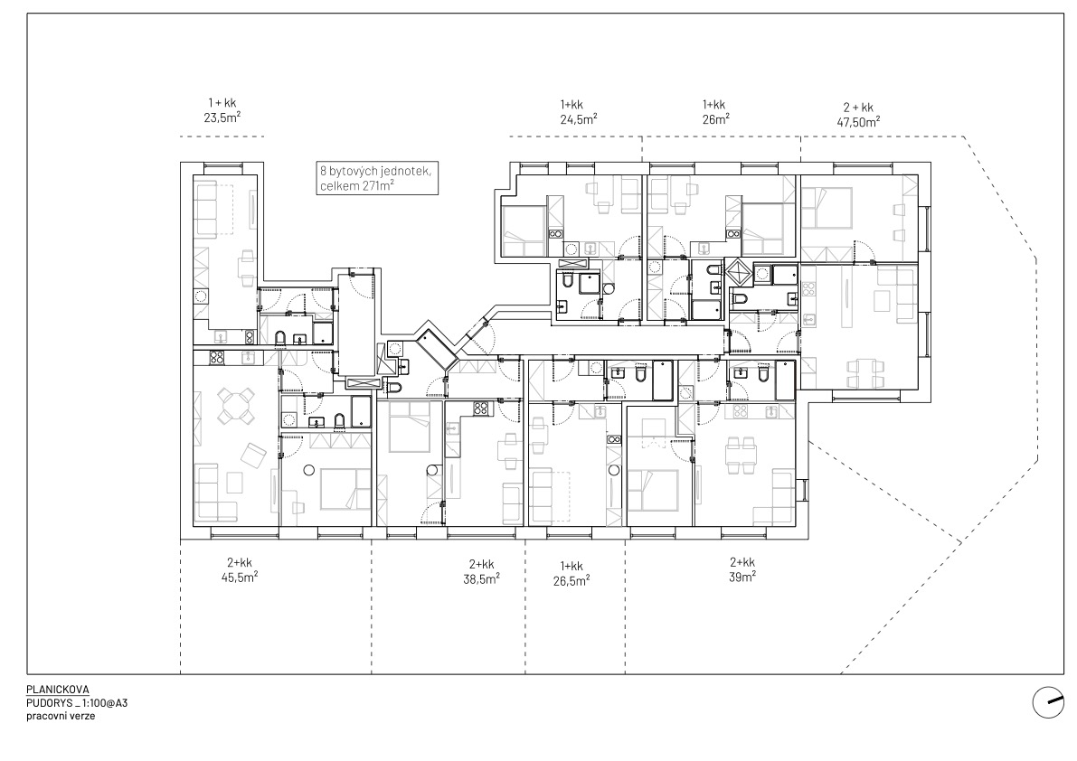
🏛 Exkluzivní návrh 8 bytových jednotek
Ve spolupráci s architektem vznikl návrh projektu, který maximalizuje využití prostoru a zároveň přináší pocit luxusu a pohodlí. Každý byt je navržen tak, aby byl moderní, kompaktní a praktický – ideální pro městské bydlení i dlouhodobý pronájem.
📊 Silná čísla, jasný plán
- Cílová hodnota projektu po dokončení: téměř 56 milionů Kč
- Očekávaný roční hrubý výnos z nájmů: cca 2 miliony Kč
- Kompletně připravený business plán: od dohody s SVJ, přes schválení na stavebním úřadě až po detailní technické prověření
Celý návrh projektu je pečlivě připraven tak, aby investor získal jasnou cestu od prvních kroků k zahájení výstavby až po úspěšný exit.
🌿 Příležitost, která se neopakuje
Petřiny jsou lokalitou, kde se snoubí klidná atmosféra plná zeleně s výbornou dopravní dostupností do centra Prahy. Spojení výjimečné adresy, architektonického odkazu a silného investičního záměru dělá z projektu Hvězda příležitost, kterou nechcete minout.
Business plán
Souhrn: Očekávané výnosy z prodeje činí 55 587 500 Kč. Celkové náklady (pořizovací cena, stavební práce + projekt, prodej & administrativa) dosahují 42 200 000 Kč. Hrubý zisk je 13 387 500 Kč a odpovídá 31,72 % marži.
Přehled bytových jednotek a prodejní ceny
| Dispozice | Zahrada (m²) | Výměra (m²) | Sazba prodej (Kč/m²) | Prodejní cena |
|---|---|---|---|---|
| 1+kk | NE | 23.5 | 190 000 Kč | 4 465 000 Kč |
| 1+kk | NE | 24.5 | 210 000 Kč | 5 145 000 Kč |
| 1+kk | NE | 26 | 210 000 Kč | 5 460 000 Kč |
| 1+kk | 30 | 26.5 | 210 000 Kč | 5 565 000 Kč |
| 2+kk | 60 | 47.5 | 205 000 Kč | 9 737 500 Kč |
| 2+kk | 60 | 39 | 205 000 Kč | 7 995 000 Kč |
| 2+kk | 50 | 38.5 | 205 000 Kč | 7 892 500 Kč |
| 2+kk | 60 | 45.5 | 205 000 Kč | 9 327 500 Kč |
| Očekávané výnosy celkem | 55 587 500 Kč | |||
Rozpočet projektu
| Pořizovací cena nemovitosti | 33 000 000 Kč |
| Stavební práce + projekt | 8 000 000 Kč |
| Prodej, marketing, administrativa | 1 200 000 Kč |
| Celkem náklady | 42 200 000 Kč |
Scénář dlouhodobého pronájmu (P&L)
| Roční nájemné (brutto) | 2 023 560 Kč |
| Celková investice (CAPEX) | 41 000 000 Kč |
| ROI (modelové) | 20,26 % |
| Hrubý výnos (yield) p.a. | 4,94 % |












